Eccles Boulevard, Birtinya, Maroochydore, Queensland, 4575, Australia
Fully Managed, Lease, Sessional Suites, Sublease
280$ Daily
Property ID :
RH-4890-property
11 Eccles Boulevard Birtinya QLD 4575
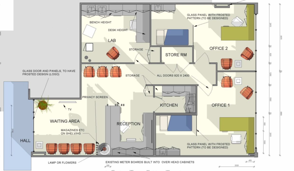
These modern medical suites are “packed with a punch” fully equipped consulting rooms with medical beds, medical supplies, computers, printers, views over the lake and an onsite scientist 5 days a week who performs lung function testing. A kitchenet and generous waiting room. Two rooms available for sessional or meet and greet tenancy.
Fees
Rates for use of the rooms on a sessional basis will be $150/half day or $280/full day. Room rental will include meet and greet and taking of payment. Fees for full practice management are negotiable.
Owning a home is a keystone of wealth… both financial affluence and emotional security.
Suze Orman
Kol3ktor :)
on said
There’s a kind of quiet beauty in your words — they don’t shout for attention, but they capture it nonetheless.
EmanuelPierb
on said
https://t.me/s/pov_1win